



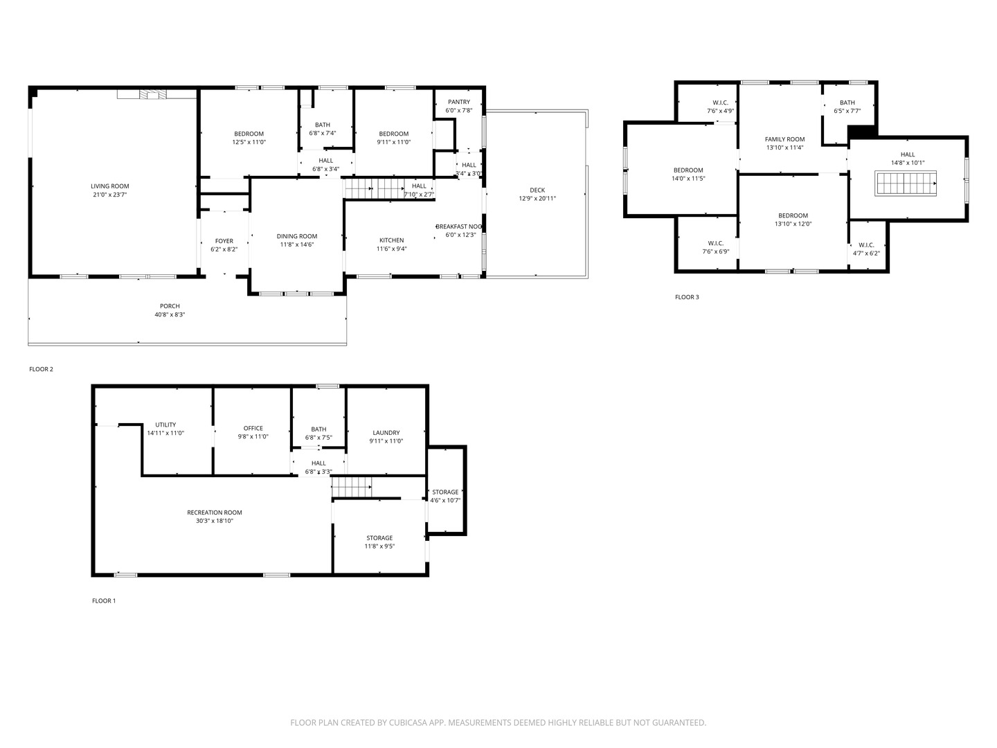
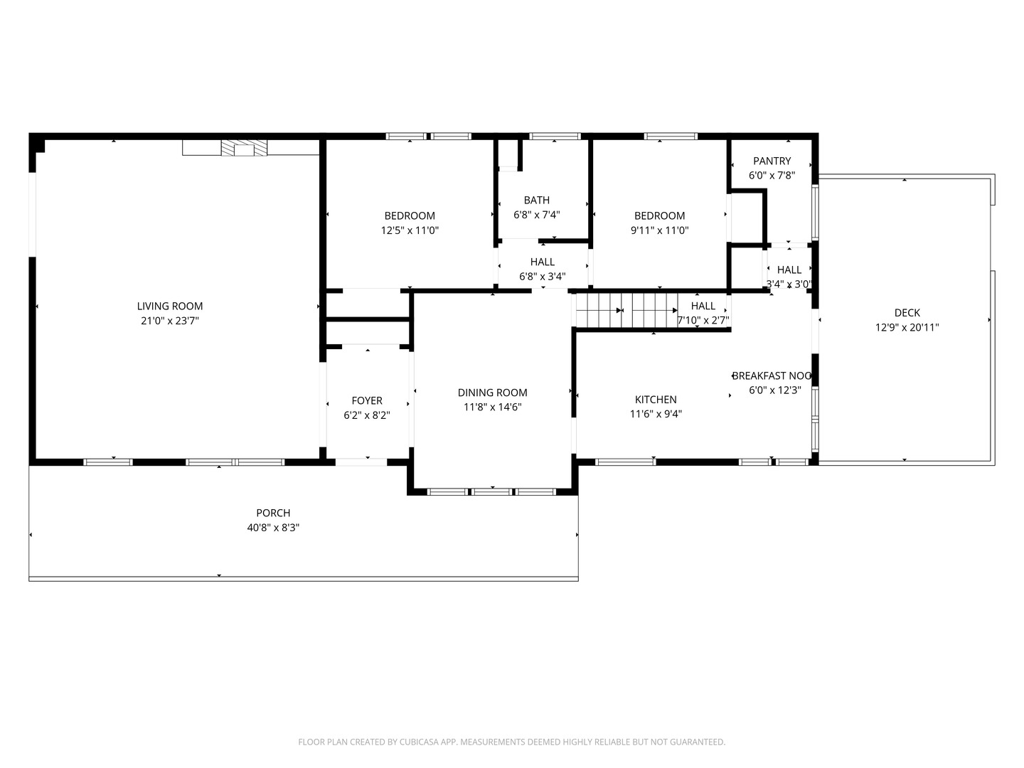
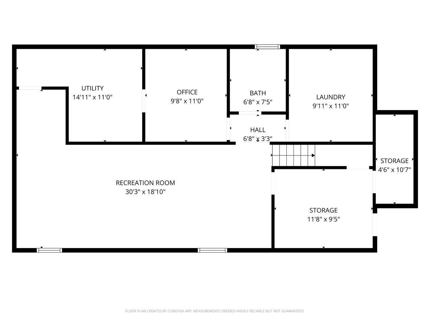
Charming bungalow in a prime Park Ridge location, set on an impressive 50x173 lot! This home perfectly blends classic charm with modern updates. A distinctive covered side front porch welcomes you into the main level, featuring an entrance foyer that splits a sun-filled living room with a cozy wood burning fireplace and a separate formal dining room. The first floor also includes a full bath, two bedrooms, and an updated eat-in kitchen showcasing beautiful cabinetry, a farmhouse sink, and a walk-in pantry. Upstairs, you'll find two generously sized bedrooms, a central sitting area, a full bath, and additional hallway storage. The finished basement offers even more living space with a recreation room, office, laundry area, two storage rooms, and a full bathroom. Enjoy outdoor living on the large deck overlooking a tree-shaded backyard. The property includes alley access to a two-car garage plus a side parking pad with 2 parking spaces for extra convenience. Major updates include roof 2010 & HVAC 2019.Fantastic location near Uptown Park Ridge, the South Park business district, Centennial Aquatic & Fitness Centers, and neighborhood schools - truly the perfect combination of timeless character and thoughtful updates.
| 3 days ago | Listing updated with changes from the MLS® | |
| 3 days ago | Status changed to Active | |
| a week ago | Price changed to $799,900 | |
| a week ago | Listing first seen on site |
to save your favourite homes and more
Enter your email address and we will send you a link to change your password.

Did you know? You can invite friends and family to your search. They can join your search, rate and discuss listings with you.